Warning: unlink(/home/maste195/masterpech.com.ua/www/oc4/storage/cache/cache.article.total.1.0.1.fe25175129461e57e31dedaf0534c733.1777262057): No such file or directory in /home/maste195/masterpech.com.ua/www/oc4/upload/system/library/cache/file.php on line 68 Газовый камин Bellfires Horizon Bell XL купить в Украине — Мастерская Печников

Газовый камин Bellfires Horizon Bell XL

Широкий газовый камин Horizon Bell XL от производителя Bellfires, Нидерланды . Мастерская Печников: консультация, доставка, установка Харьков Киев Полтава Украина.

В наличии
314 155 грн.
€ 6 112

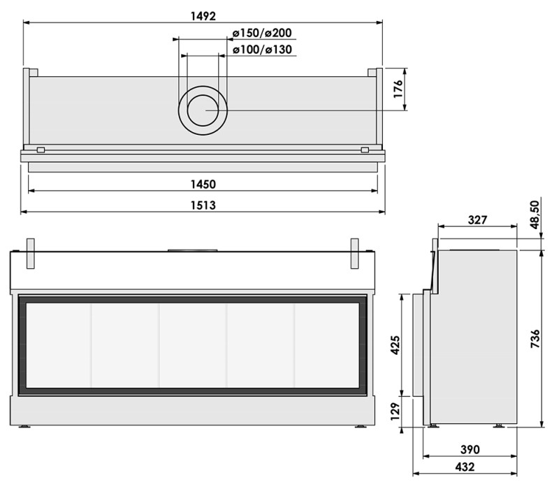
Габариты

    Вес, кг
    132 (кг)

Характеристики

    Материал
    Сталь
    Вид топлива
    Газ

Дополнительно

    Производитель
    Bellfires
    Гарантия, мес
    10 лет

Описание:

Газовые камины Bellfires – это отличная альтернатива дровяным каминам, как в частном доме, так и в квартире. Покупая газовый камин, Вы расстаетесь с такими проблемами, как:

  • длительный розжиг пламени;

  • занос, вместе с дровами, мусора в дом;

  • заготовку дров и размещение их во дворе;

  • чаще всего под открытый камин или каминную топку требуется готовить массивное основание.

При этом Вы получаете:

  • неотличимую от дровяного костра игру пламени в камине обогрев помещения;

  • конструкция газового камина менее сложная и требует меньших затрат и технологических решений при монтаже газовой каминной топки;

  • не требуется огнеупорной защиты пола т.к. из газового камина не вылетают искры и не просыпается зола;

  • не надо чистить золу после прогорания дров.

Описание газового камина Horizon Bell XL

Horizon Bell XL - камин с широкой закрытой газовой топкой. Задняя стенка декорирована полированным стеклом. Быстрый розжиг, легкое управление, простое обслуживание,современный дизайн - одни с множества преимуществ газового камина Bellfires Horizon Bell XL.
Внутренняя задняя стенка может быть выполнена из глянцевой керамики черного цвета. Горелка декорируется, что придает естественность и натуральный вид. В качестве декора можно использовать серые камни, мраморную гальку или керамические поленья с имитацией настоящих дров. Газовый камин BellFires не только дополнит интерьер Вашего дома, но и отлично будет исполнять функции отопительного прибора.

Стандартная комплектация: рамка Floating Frame или Hidden Door, горелка Line Fire или Centre Fire, полированное стекло, стальные панели или простой фон, художественное оформление горелки и дистанционное управление.

Технические характеристики:

Производитель
Bellfires
Страна производитель
Нидерланды
Вид топлива
Газ
Виды газового топлива
Природный газ, пропан, бутан
Мощность
2 - 10 кВт
КПД
85 %
Расход топлива (природный газ)
1,41 м3/час
Расход топлива (пропан/бутан)
860 грамм/час
Материал топки
Сталь
Вид газового камина
Встроенный
Тип топки
Закрытая
Ø дымохода вход/выход
100/130 мм, 150/200 мм
Режим работы топки
Длительное горение
Забор воздуха в топку
С внешней среды
Подключение к дымоходу
Верхнее
Вес газового камина
132 кг
Гарантийный срок
120 мес.
Состояние
Новое

Написать отзыв

Пожалуйста авторизируйтесь или создайте учетную запись перед тем как написать отзыв

Рекомендуемые товары

Газовый камин Bellfires View Bell Derby

Газовые камины Bellfires – это отличная альтернатива дровяным каминам, как в частном доме, так и в квартире. Покупая га..

262 634 грн.


Газовый камин Bellfires View Bell Vertical

Газовые камины Bellfires – это отличная альтернатива дровяным каминам, как в частном доме, так и в квартире. Покупая га..

242 324 грн.


Газовый камин Bellfires Room Divider Medium Left/Right

Бренд Bellfires:  40-летний опыт проектирования и производства газовых каминов; ..

250 330 грн.


Газовый камин Bellfires Room Divider Large

Бренд Bellfires: 40-летний опыт проектирования и производства газовых каминов; ..

286 707 грн.


Газовый камин Bellfires Corner Bell XL

Газовые камины Bellfires – это отличная альтернатива дровяным каминам, как в частном доме, так и в квартире. Покупая га..

314 388 грн.


Газовый камин Bellfires Corner Bell York

Газовые камины Bellfires – это отличная альтернатива дровяным каминам, как в частном доме, так и в квартире. Покупая га..

263 658 грн.


Газовый камин Bellfires Horizon Bell Small Tunnel

Газовые камины Bellfires – это отличная альтернатива дровяным каминам, как в частном доме, так и в квартире. Покупая га..

307 543 грн.


Газовый камин Bellfires Horizon Bell Medium

Газовые камины Bellfires – это отличная альтернатива дровяным каминам, как в частном доме, так и в квартире. Покупая га..

281 097 грн.


Газовый камин Bellfires Horizon Bell Large Tunnel

Газовые камины Bellfires – это отличная альтернатива дровяным каминам, как в частном доме, так и в квартире. Покупая га..

340 628 грн.


Газовый камин Bellfires Horizon Bell XXL

Газовые камины Bellfires – это отличная альтернатива дровяным каминам, как в частном доме, так и в квартире. Покупая га..

340 670 грн.


Газовый камин Bellfires Vertical Bell Small

Газовые камины Bellfires – это отличная альтернатива дровяным каминам, как в частном доме, так и в квартире. Покупая га..

267 874 грн.


Газовый камин Bellfires Vertical Bell Medium

Газовые камины Bellfires – это отличная альтернатива дровяным каминам, как в частном доме, так и в квартире. Покупая га..

267 874 грн.


Рекомендуем почитать

Живой огонь газовых каминов Bellfires теперь в Украине

Живой огонь Premium Fire газовых каминов Bellfires теперь в Украине Больше, чем когда-либо прежде, огонь в Premium Fire выглядит настоящим дровяным огнем. Почему? Горелки..

Преимущества газовых каминов Bellfires в Украине

Магия. Вы нажали на кнопку и огонь горит. "Мастерская печников" поможет выбрать, организует доставку, установку и монтаж газового камина - гарантия и цена производителя. ..