Классическая печь Brunner WF 50

BRUNNER был первым производителем на рынке, который предложил чугунные топки для теплоемких печей. Почему? Потому что они на всю жизнь, благодаря качественной конструкции и устойчивости к высокой температуре.

В наличии
205 309 грн.
€ 3 975

Габариты

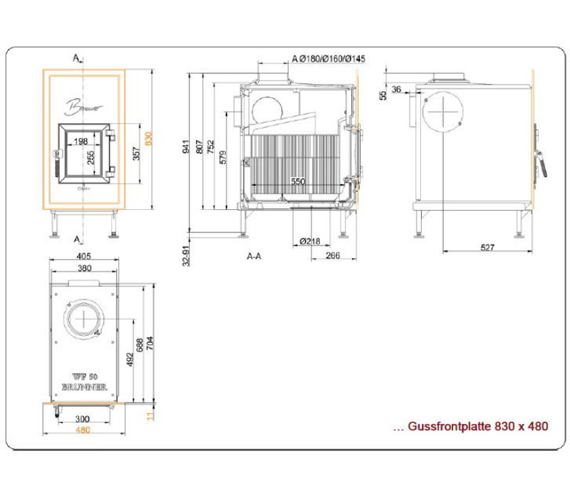
    Высота
    941.0(мм)
    Глубина
    704.0(мм)
    Высота стекла дверцы
    255(мм)
    Диаметр дымохода
    180.0(мм)
    Ширина
    480.0(мм)
    Ширина стекла дверцы
    198(мм)

Характеристики

    Материал
    чугун
    Цвет
    чёрный

Дополнительно

    Категория
    печь
    Производитель
    brunner

Описание:

Brunner WF 50 — это продуманная и долговечная печная топка, созданная как современная альтернатива массивным кирпичным печам. Ее конструкция позволяет подключать внешнюю теплоаккумуляционную массу — керамические или шамотные модули, которые накапливают тепло и передают его в помещение еще долгие часы после завершения горения. Сначала нагревается мощный чугунный корпус, который быстро выходит на режим, а далее аккумуляционный блок равномерно и мягко отдает тепло, создавая стабильный микроклимат без перегревов.

Одно из ключевых преимуществ WF 50 — легкость обслуживания и возможность замены топки без демонтажа всей конструкции. В отличие от традиционных кирпичных печей, ремонт которых требует сложных и дорогостоящих работ, эта система позволяет просто обновить или обслужить топку, сохраняя облицовку и аккумуляционные элементы.

Brunner WF 50 — это разумное сочетание немецкой инженерии, высокой тепловой инерции и удобства эксплуатации. 

Идеальный выбор для тех, кто хочет получить комфорт живого огня, эффективный обогрев и конструкцию, которая будет служить десятилетиями.

Основные характеристики:
- Маркировка энергоэффективности: А+
- Номинальная тепловая мощность - 9 кВт
- Размеры двери высота х ширина: 36 х 30 см
- Боковое открытие двери
- Возможность правое открытие двери 
- Глубина камеры сгорания - 55 см
- Тип топлива – Древесина
- Длина бревна: 33 - 50 см
- Возможная загрузка дров : 3,5 - 8 кг
- Материал печной топки – Чугун
- Материал камеры сгорания -Шамот натурального тона с рифленой текстурой
- Подключение к отдельно стоящей аккумуляционной массе
- Топка оснащена ручкой регулировки притока воздуха

Декоративная панель:
Размер фронтальной чугунной (возможна стальная) декоративной накладки: 83 × 48 см, 83 × 52 см, 79 × 42 см, 89,5 × 48 см, 106 × 48 см (с вентиляционной решеткой),

Преимущества продукта:
•Быстрый прогрев помещения от чугунной топки с длительной отдачей тепла от аккумуляционной массы после окончания горения
•Долговечная конструкция из высококачественного чугуна
•Индивидуальный дизайн, созданный опытными мастерами
•Великолепный обзор огня 
•Идеально подходит для современных домов с чистой, линейной архитектурой.
•приток воздуха в камеру сгорания с улицы;
•система «чистое стекло»;
•вторичный дожиг дымовых газов;

Технические характеристики:

Производитель
BRUNNER
Страна производитель
Германия
Мощность номинальная
9.0(кВт)
Коэффициент полезного действия
85.0(%)
Вид топлива
Твердое
Виды твердого топлива
Дрова
Расход твердого топлива
5.5(кг/час)
Материал топки
Шамот
Вид топки
Традиционная топка
Тип топки
Закрытая
Способ открытия дверцы топки
Боковое открытие
Система очистки стекла
Обдув стекла потоком воздуха
Режим работы топки
Длительное горение
Забор воздуха в топку
С внешней среды
Подключение к дымоходу
Верхнее
Вес
246.0(кг)
Гарантийный срок
120(мес)
Состояние
Новое

Написать отзыв

Пожалуйста авторизируйтесь или создайте учетную запись перед тем как написать отзыв