Каминная топка Brunner Eck-Kamine 42/57/30 с боковым открытием

100% сделано в Германии. Бесспорный лидер рынка в Германии и Австрии (установлено 751 000 каминов). Качество не на словах - уникальные размеры печей говорят о сверхпрочной конструкции, ни один другой производитель не имеет таких размеров

В наличии
278 910 грн.
€ 5 400

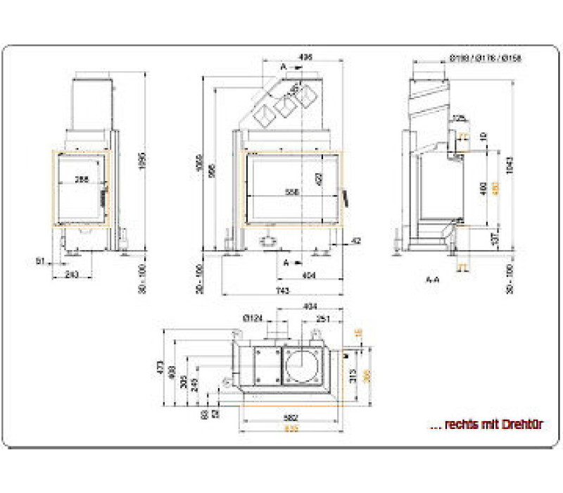
Габариты

    Ширина, мм
    743
    Высота, мм
    1069
    Глубина, мм
    473
    Высота стекла дверцы, мм
    422
    Ширина стекла дверцы, мм
    558
    Диаметр дымохода, мм
    200
    Вес, кг
    185

Характеристики

    КПД, %
    80
    Мощность, кВт
    8
    Материал топки
    Сталь
    Открытие дверки
    Боковое открытие
    Форма стекла топки
    Угловое
    Футеровка
    Шамот
    Вторичный дожиг дымовых газов
    Да
    Забор воздуха в топку
    С внешней среды
    Метод обогрева
    Воздушный (конвекционный)
    Подключение к дымоходу
    Верхнее
    Размещение
    Пристенное
    Приток воздуха в камеру сгорания
    Да
    Тип каминной топки
    Закрытая
    Расход твердого топлива, кг/ч
    3

Дополнительно

    Производитель
    BRUNNER
    Cтрана производитель
    Германия
    Гарантия, мес
    120

Описание:

Каминная топка Brunner 42/57/30 Eck Kamine — это стильная и мощная топка от немецкого производителя Brunner. Модель Eck Kamine специально разработана для угловых каминов и оснащена механизмом подъемной дверцы, обеспечивающим удобное и безопасное обслуживание.

Основные характеристики и преимущества:

  • мощность: номинальная тепловая мощность составляет около 7 кВт, что делает топку подходящей для обогрева среднего размера помещений;
  • тип топлива: предназначена для сжигания дров, что обеспечивает природное тепло и уют в помещении;
  • конструкция: изготовлена из высококачественной стали и шамота, что гарантирует долговечность и устойчивость к высоким температурам;
  • открывание дверцы: оснащена системой подъема двери слева, что позволяет удобно управлять подачей воздуха и упрощает доступ к огню. Механизм подъемной дверцы обеспечивает легкое открытие, предотвращая распространение дыма в помещение;
  • стекло: панорамное угловое стекло дает превосходный обзор огня, добавляя уюта и подчеркивая современный стиль интерьера;
  • энергоэффективность: высокий КПД (около 80%) свидетельствует о низком расходе дров и высоком уровне теплоотдачи.

Эта каминная топка от Brunner также соответствует строгим европейским стандартам экологии и безопасности, таким как BImSchV (Stufe 2) и другие. Надежность и качество Brunner делают ее отличным выбором для создания стильного и теплого интерьера.

Технические характеристики:

Производитель
BRUNNER
Страна производитель
Германия
Мощность номинальная
8.0(кВт)
Вид топлива
Твердое
Виды твердого топлива
Дрова
Расход твердого топлива
3.0(кг/час)
Материал топки
Шамот
Вид топки
Традиционная топка
Тип топки
Закрытая
Способ открытия дверцы топки
Подъём вверх
Форма стекла топки
Угловое
Система очистки стекла
Обдув стекла потоком воздуха
Режим работы топки
Длительное горение
Забор воздуха в топку
С внешней среды
Подключение к дымоходу
Верхнее
Вес
185.0(кг)
Гарантийный срок
120(мес)
Состояние
Новое

Написать отзыв

Пожалуйста авторизируйтесь или создайте учетную запись перед тем как написать отзыв

Рекомендуемые товары

Банная печь каменка KASTOR SAGA 20

Классическая финская банная печь каменка Kastor SAGA 20 создана для истинных ценителей и почитателей банных традици..

113 114 грн.


Камин KOBOK Chopok R90 330/450 LD

Купить стальной камин KOBOK Chopok R90 330/450 LD Киев Харьков Николаев Украина Произвоител..

144 104 грн.


Камин KOBOK Chopok O R90 LD

Купить стальной камин KOBOK Chopok O R90 LD Киев Днепр Сумы Украина Произвоитель: KOBOK ..

124 477 грн.


Камин KOBOK Chopok R90 S 330/450 LD

Произвоитель: KOBOK Словацкая компания KOBOK производит каминные топки различной мощности и размерных серий. ..

144 104 грн.


Камин KOBOK Chopok R90 S 380/500 VD

Произвоитель: KOBOK Словацкая компания KOBOK производит каминные топки различной мощности и размерных серий. Они п..

203 501 грн.


Камин KOBOK Chopok 2R90 330/450 LD

Словацкая компания KOBOK производит каминные топки различной мощности и размерных серий. Они предназначены для сжиган..

189 556 грн.


Теги: Камины топки в Харькове, Стальные каминные топки, Каминные топки Brunner, Угловые каминные топки, Каминные топки в Полтаве, Каминные топки в Днепре

Рекомендуем почитать

Сколько стоит установка банной печи, камина или каминофена в Харькове, Киеве, в Украине?

Установка печи или камина – сложный и ответственный процесс, который лучше доверить профессионалам. Корректность расчетов и соблюдение базовых правил монтажа позволят обеспечить безопасность эксплуа..